WORK
Full Home Renovation
YEAR
2024
Priddis
PRIDDIS RENOVATION – FULL HOME RENO
Project Overview
This full-home renovation in Priddis transformed a dated residence into a luxurious, modern retreat tailored to the homeowners’ lifestyle. Through a carefully planned design-build process, the home was reimagined to improve flow, functionality, comfort, and energy efficiency — while delivering a refined, cohesive aesthetic throughout.
Key Features
- Full home, design-build renovation
- Structural reconfiguration with exposed steel beams
- Custom kitchen with waterfall island and chevron backsplash
- Spa-inspired primary bathroom
- Energy-efficient upgrades qualifying for Greener Homes Grant
- Custom wine cellar and feature staircase
- Clear planning and seamless execution
Renovation Goals & Vision
While the home offered generous square footage, the layout felt disconnected and outdated. Closed-off spaces limited natural light and flow, and the finishes no longer aligned with the homeowners’ vision for modern luxury living. In addition to aesthetic concerns, the homeowners wanted to:
- Modernize systems and finishes
- Improve overall functionality
- Increase energy efficiency and comfort
- Create spaces for entertaining, relaxation, and daily living
The challenge was to rework the structure and layout while maintaining cohesion across all levels of the home.
The Vision
Modern Luxury, Designed for Real Life
The homeowners envisioned a refined, modern home that felt warm, intentional, and highly functional. Key goals included:
- An open, light-filled main living area
- A statement kitchen designed for entertaining
- A spa-inspired primary bathroom
- A versatile lower level for hosting and relaxing
- Energy efficiency upgrades for long-term comfort and sustainability
Achieving this required structural changes, advanced systems integration, and meticulous planning – making a design-build approach essential.
Design Phase
Creating Clarity Before Construction
To unlock better flow and functionality, several load-bearing walls were removed, opening the kitchen and living spaces while maintaining structural integrity through exposed steel beams.
Key layout improvements included:
- Reconfigured main floor for open-concept living
- Improved circulation and sightlines
- Better connection between kitchen, living, and dining areas
- A basement layout optimized for entertaining and storage
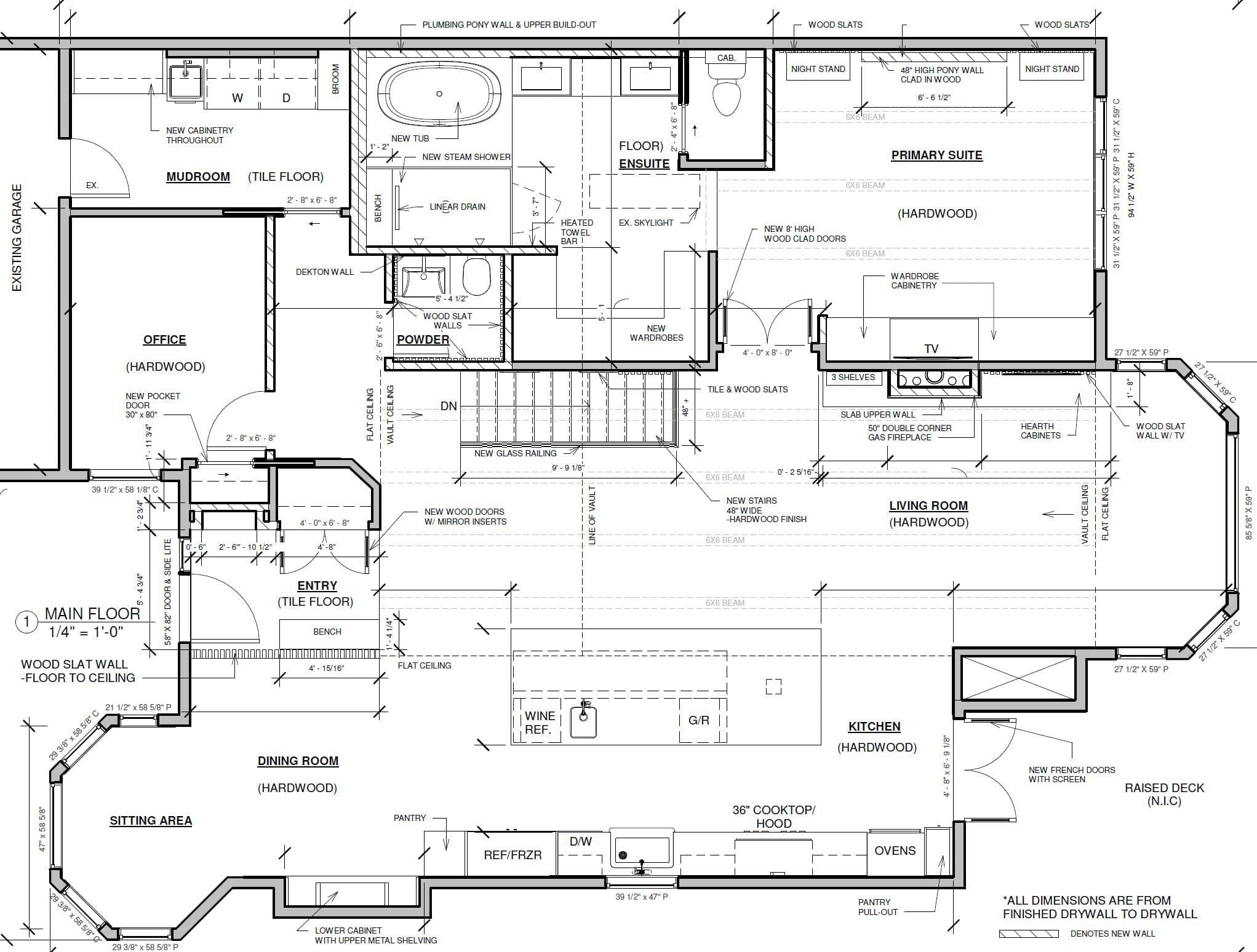
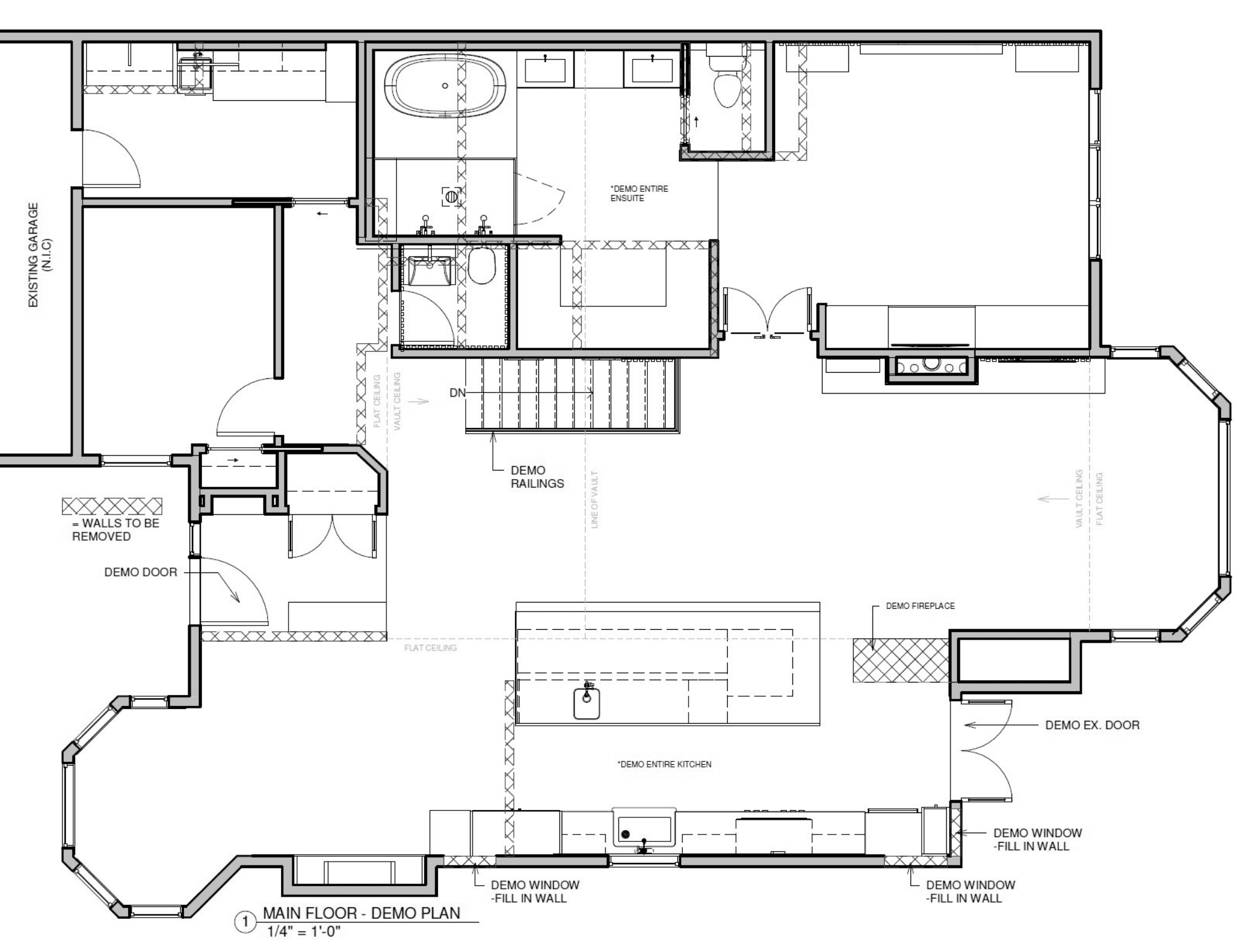
BEFORE & AFTER FLOOR PLANS
To unlock better flow and functionality, several load-bearing walls were removed, opening the kitchen and living spaces while maintaining structural integrity through exposed steel beams.
Old Floor Plan
The original floor plan was narrow and dark; The oversized walk-in pantry pushed the ovens closer to the kitchen island, leaving very little space for the refrigerator, walkway, and cooking which over time became a nuisance.
In the master bathroom, we retained the stunning skylight, which elevated the space. However, the homeowners wanted to remove the large jacuzzi tub, as it occupied most of the space, was time-consuming to clean, and wasn’t being used frequently.
New Floor Plan
To achieve the desired look for this family home, we opened up the layout by reducing the oversized walk-in pantry. We brightened the space with white cabinetry, additional recessed lighting, and stylish light fixtures above both the kitchen island and the dining room table.
In the bathroom, we removed the large tub that dominated the space and added double sinks for increased counter space. We also incorporated a closet and cabinets for better organization. By rearranging the layout, we moved the shower to the front wall and the toilet to the back, creating the illusion of privacy. This redesign allowed for optimal flow during everyday prep time.
3D RENDERINGS
Photo-realistic 3D renderings played a critical role in this renovation. They allowed the homeowners to visualize every space, finalize selections, and approve details before construction began. This design clarity ensured confident decision-making, accurate pricing, and smooth execution during construction.
Construction Phase
Bringing the Design to Life
This renovation involved significant structural and technical coordination. Removing load-bearing walls required exposed steel beams that now serve as both structural and architectural features.
Advanced systems integration included:
- Kohler DTV digital shower system
- Bain Ultra Esthesia tub with jets, aromatherapy, and heated backrest
- Custom glass-enclosed wine cellar
- Coordinated plumbing, electrical, and ventilation planning
Despite the complexity, careful planning and collaboration ensured a seamless build process.
The Transformation
Before Photos
Client Feedback
We couldn’t be more thrilled with the work Rusch Design Build did on our home renovation. From start to finish, they were professional, communicative, and incredibly talented. Every aspect of the renovation exceeded our expectations, not just in quality, but in creativity and attention to detail.
The award winning kitchen is both stunning and functional, with a design that elevates our everyday living. The basement was completely transformed into a beautiful, inviting space that feels like an extension of our main living area, not an afterthought. The design and construction of the master suite and master bathroom are a testament to Rusch’s exceptional craftsmanship, and their ability to make our design vision a reality.
What sets Rusch Design Build apart from their competitors is their commitment to excellence. They took the time to understand our goals and delivered results reflecting not just skill, but passion and pride in their work. The renovation process was smooth, transparent, and enjoyable.
If you’re considering a renovation and want a team who can bring your vision to life, I highly recommend Rusch Design Build. Our home is now not only more beautiful and functional, but it’s also award-winning thanks to them.– Homeowner, Priddis






