WORK
Full Home Renovation
YEAR
2025
MOUNT ROYAL
MOUNT ROYAL RENOVATION – MAIN FLOOR RENO
Project Overview
Located in Mount Royal, this main floor renovation reimagines a 1930s kitchen into a highly functional, architecturally expressive space that honours the home’s heritage. The project balances preservation with performance, introducing modern layout, storage, and flow while maintaining the character and integrity of the original structure. The result is a kitchen that feels both timeless and purpose-built for contemporary living.
Key Features
- Removal of load-bearing wall with structural steel beam
- Full brick hood feature concealing ventilation
- Deep green custom cabinetry
- Waterfall island with fluted detailing
- Concealed butler’s pantry
- Integrated storage walls
- Custom detailing to accommodate historic windows
The Transformation
Before/After Slider
Before Photos
After Photos
Renovation Goals
The existing kitchen was constrained by its original 1930s layout, limiting both functionality and connection to surrounding spaces. Storage was inefficient, circulation was restricted, and the kitchen lacked the presence expected of a central living space. The goal was to transform it into a high-performing kitchen that could anchor the main floor while respecting the home’s architectural roots.
- Improve flow by opening the main floor
- Increase storage through integrated solutions
- Create a kitchen suited for modern cooking and entertaining
- Preserve and highlight heritage character
- Introduce a strong architectural focal point
The core challenge was to modernize layout and performance while preserving the authenticity and proportions of a 1930s home.
Vision
Heritage Character, Reimagined for Modern Living
The vision was to create a kitchen that feels original to the home, while delivering the performance and presence of a modern space.
- A kitchen that anchors and connects the main floor
- Architectural detailing that reflects the home’s history
- Seamless integration of old and new materials
- Functional zones designed for efficiency and flow
- A bold, statement-driven design balanced with warmth
Delivering this vision required structural intervention, precise detailing, and a design-build process that could carefully balance preservation with innovation.
Design Phase
Creating Clarity Before Construction
The design strategy focused on opening the layout while layering in architectural elements that reinforce the home’s historic character.
- Removed a major wall to connect kitchen to adjacent spaces
- Introduced a large central island to define the room
- Designed a concealed butler’s pantry for additional storage
- Integrated full-height cabinetry and storage walls
- Developed custom millwork to work with low historic windows
- Balanced structural elements with decorative ceiling features
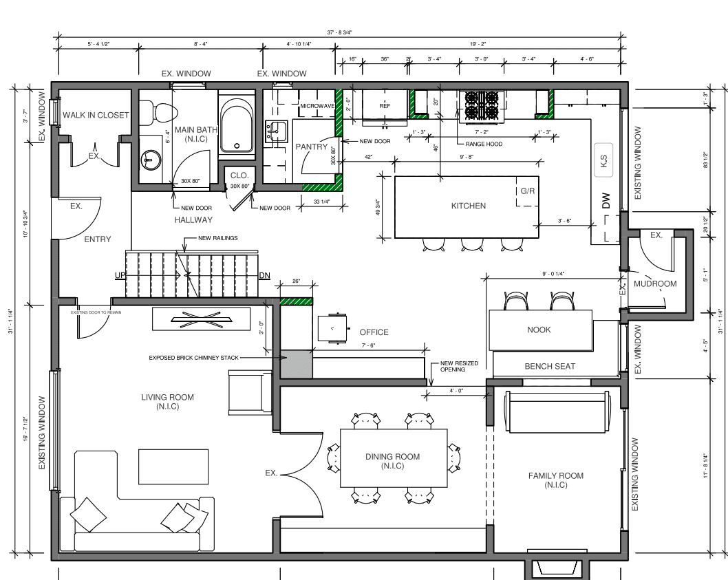
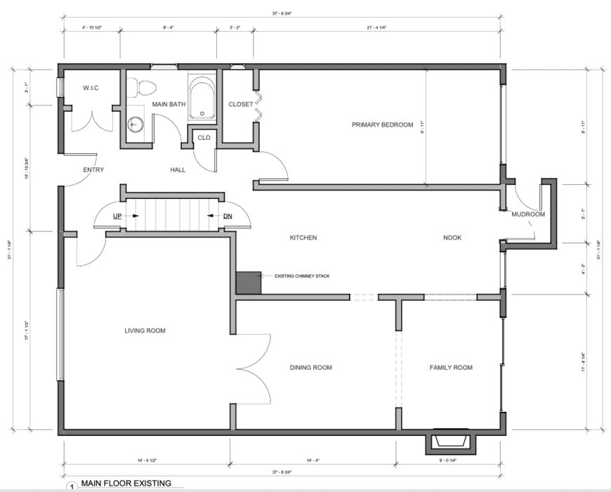
BEFORE & AFTER FLOOR PLANS
The floor plan transformation centred on opening the kitchen to the main floor while resolving structural constraints and improving overall usability.
Old Floor Plan
The original kitchen was enclosed and separated from the rest of the main floor, limiting interaction between spaces. Its layout reflected the era it was built in, prioritizing separation over connection, which resulted in restricted movement and a lack of natural flow.
In addition to layout limitations, uneven floors and aging framing created functional challenges. The positioning of windows and structural elements further constrained design options, making it difficult to introduce modern storage and appliances without compromising the integrity of the space.
New Floor Plan
The updated layout opens the kitchen to the main floor, allowing it to function as a central gathering space rather than a standalone room. A large island now anchors the space, improving circulation, increasing prep area, and creating a natural place for seating and interaction.
Structural upgrades, including the installation of a steel beam, made it possible to remove key barriers while maintaining stability. The redesign also incorporates concealed storage, a butler’s pantry, and tailored millwork solutions that work around the home’s original windows, resulting in a space that feels both highly functional and architecturally integrated.
3D RENDERINGS
Detailed design planning and visualization were essential in aligning modern interventions with the home’s historic character. Renderings and drawings allowed the team to carefully study proportions, material transitions, and architectural details before construction began. This ensured that new elements felt intentional and cohesive rather than imposed.
Construction Phase
Bringing the Design to Life
Construction required careful coordination between structural upgrades and heritage-sensitive detailing. Opening the space involved removing a major load-bearing wall and installing a steel beam, while also addressing uneven floors and framing inconsistencies.
Structural wall removal with engineered steel beam installation
- Floor leveling and framing corrections
- Custom millwork tailored to historic window conditions
- Full brick hood feature with concealed ventilation
- Faux ceiling beams to integrate structural elements
- Installation of concealed butler’s pantry
- Integration of custom cabinetry and storage walls
Despite the technical challenges, precise planning and execution allowed the project to seamlessly merge historic character with modern performance.







