WORK
Full Home Renovation
YEAR
2024
SUNSET PRIDDIS
SUNSET PRIDDIS RENOVATION – FULL HOME RENO
Project Overview
Sunset Priddis is a full-home renovation in Priddis that transformed a dated, compartmentalized duplex into a bright, welcoming home designed for long-term living. Tailored for homeowners preparing for retirement, the project focused on improving flow, functionality, storage, and everyday comfort while introducing a timeless, cohesive aesthetic throughout. Through a carefully managed design-build process, the home was reimagined to better support entertaining, relaxation, and low-maintenance living.
Key Features
- Full-home design-build renovation
- Open-concept main floor reconfiguration
- Structural wall removal to improve flow
- Large custom kitchen island for entertaining
- Custom slat wall divider
- Integrated bar nook
- Upgraded ensuite with makeup vanity
- Custom millwork and built-in storage throughout
The Transformation
Before/After Slider
Before Photos
After Photos
Client Feedback
“We knew people out here had used Rusch. We saw what they had done, and it was absolutely beautiful. Their customers had nothing but great things to say. We did interview a couple others, but in the end it came down to we’d seen their work. It was a great recommendation. So we felt really comfortable going with Rusch.
Rusch had a great process for planning, scoping, and defining what the project was going to look like, which was important to us because we had important time deadlines. We wanted to know what the project would cost and what we were going to get. And that was a very detailed process that we were able to go through probably within a month and complete, and that gave us confidence that we could leave it with Rusch and go away for the winter while it was being completed.
We love how it turned out! The entire main floor reno turned out better than I could imagine. It felt like a brand new home that we were moving into!”
– Jackie & Darren, Sunset Priddis Homeowners
Renovation Goals
The home had strong potential, but the original layout felt closed off and no longer reflected how the homeowners wanted to live. Key spaces were disconnected, the kitchen felt restrictive, and the overall aesthetic lacked the warmth and brightness they envisioned for this next chapter of life. Because the homeowners were living abroad during the renovation, the project also required a clear process, strong communication, and confident decision-making from a distance.
- Open up the main floor for better flow and sightlines
- Create a home better suited to entertaining and daily living
- Improve storage, organization, and functionality
- Introduce a bright, timeless design aesthetic
- Deliver a low-maintenance home tailored for retirement
The key challenge was to rework the layout for better openness and function while maintaining cohesion throughout the home and managing the renovation remotely.
Vision
Bright, Timeless Living for the Next Chapter
The homeowners envisioned a home that felt brighter, calmer, and easier to live in every day — a place that would support entertaining, relaxation, and aging in place without sacrificing beauty or comfort. The design direction centred on warm finishes, improved openness, practical storage, and a more connected main floor.
- Warm wood elements to balance modern finishes
- Clean lines and simplified forms throughout
- Cohesive material palette across all spaces
- Elevated, functional design tailored to everyday living
Design Phase
Creating Clarity Before Construction
The design focused on reworking spatial relationships while layering in a cohesive material and finish palette that flows throughout the home.
- Opened up main floor sightlines and circulation paths
- Reimagined kitchen layout with central island as focal point
- Designed a cohesive millwork strategy across all rooms
- Integrated custom storage solutions, including a Murphy bed
- Elevated the primary suite with a luxurious ensuite layout
- Coordinated lighting design to enhance architectural features
The result is a home that feels both striking and intentional, where every detail contributes to a unified experience.
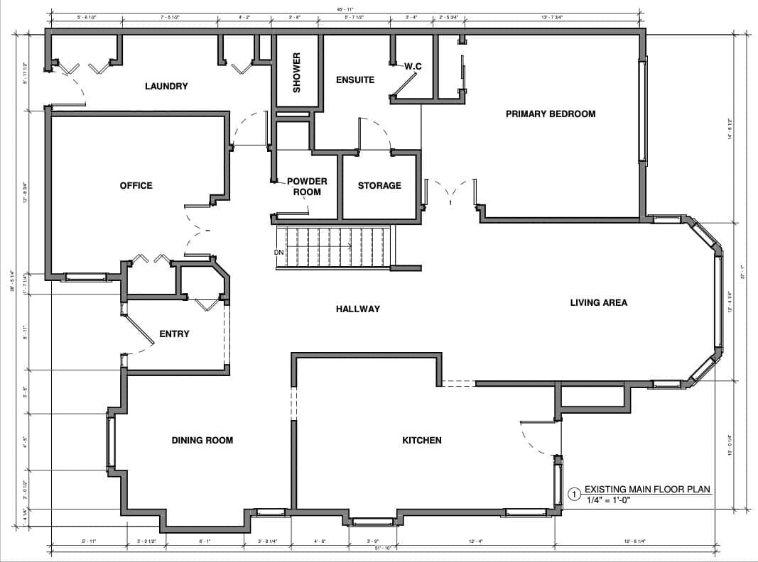
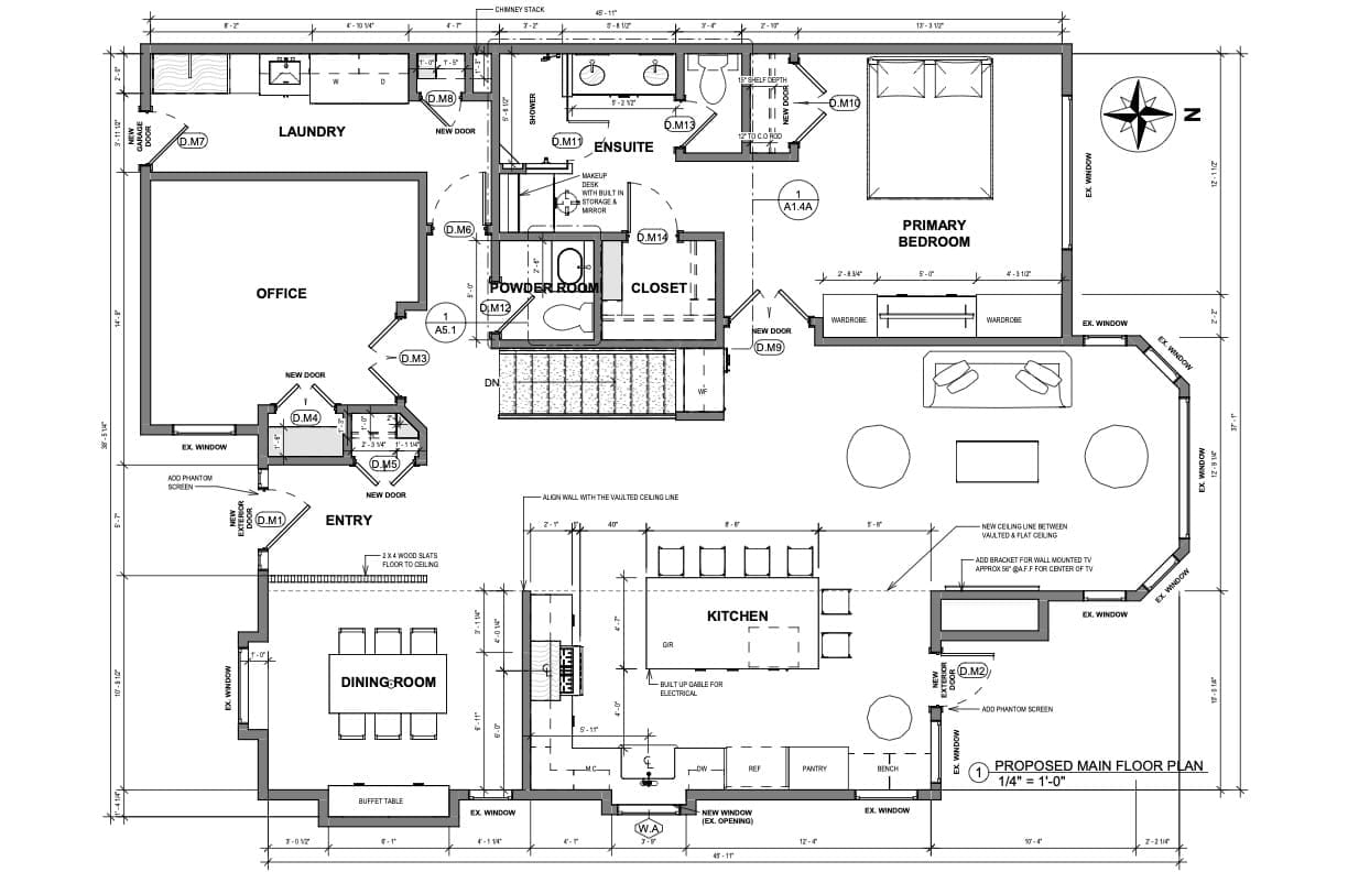
BEFORE & AFTER FLOOR PLANS
The floor plan improvements centred on creating a more connected, functional home by opening key living spaces and rethinking how each area supported daily life and entertaining.
Old Floor Plan
The original floor plan felt segmented, with enclosed spaces that limited light, openness, and connection between the main living areas. The kitchen, dining, and living spaces operated more as separate rooms than as a cohesive whole, making the home feel smaller and less inviting than it could have been.
The existing kitchen lacked openness and usability. Storage and layout opportunities were not being fully maximized, and the overall flow of the main floor did not support the kind of easy entertaining or comfortable day-to-day living they envisioned for retirement. Other areas of the home also felt dated, with finishes and layouts that no longer aligned with their goals for a bright, timeless interior.
New Floor Plan
The new floor plan opens the home up considerably, creating stronger connections between the kitchen, dining, and living areas. A large central island now anchors the main floor, improving workflow, adding seating, and making the space feel more inviting for both everyday living and entertaining.
Supporting spaces were also planned with more intention. The main floor now includes a dedicated office, laundry room, powder room, and a more functional primary suite, while the basement was reworked to include a spacious recreational area, bar, gym, guest accommodations, and generous storage to better support the homeowners’ lifestyle.
3D RENDERINGS
Photo-realistic 3D renderings were an important part of this project, especially because the homeowners were living abroad during the renovation. They helped the clients clearly visualize the layout, materials, and design details before construction began, making it easier to finalize selections and move forward with confidence. This level of design clarity supported strong communication, accurate planning, and a smoother construction process.
Construction Phase
Bringing the Design to Life
The construction phase required careful coordination to execute the structural and layout changes while maintaining design consistency throughout the home. Because the project involved remote client communication and work within a duplex setting, sequencing, planning, and collaboration were especially important to keep the renovation moving smoothly.
Advanced systems integration included:
- Structural wall removal to open the main floor
- Careful coordination within a duplex environment
- Large custom kitchen island installation
- Custom slat wall feature
- Integrated bar nook construction
- Custom millwork and built-in storage
- Ensuite upgrades including a makeup vanity
Detailed planning and a disciplined design-build process ensured a seamless renovation experience from concept through construction.







