WORK
Main Floor Renovation
YEAR
2025
Woodbine
WOODBINE RENOVATION – MAIN FLOOR RENO
Project Overview
What was once a segmented and inward-facing kitchen has been completely reimagined into a space built around connection, light, and movement. This Woodbine kitchen renovation shifts the focus to a bold central island and continuous sightlines, creating a kitchen that naturally draws people in and keeps them there.
Rather than simply updating finishes, this project redefined how the entire main floor functions—introducing intentional gathering zones, improving flow between rooms, and elevating everyday use into something more social and engaging.
Key Features
- 15-foot statement island designed for hosting and daily use
- Open-concept layout connecting kitchen, dining, and living spaces
- Dual sink configuration for multi-user functionality
- Integrated appliance wall with double refrigeration and wine storage
- Custom bar and beverage centre for entertaining
- Feature ceiling beams adding warmth and architectural definition
- Textured tile backsplash creating depth and visual interest
- Layered lighting system enhancing both ambiance and task use
The Transformation
Before/After Slider
Before Photos
After Photos
Client Feedback
“We are extremely pleased with the renovation of our home done by Rusch Design. They transformed the main floor from a series of smaller rooms. hallway and a outdated kitchen to a bright and functional open space. It is the highest quality workmanship and looks amazing.
Oliver leads his team with integrity. From the beginning, his unique process involved taking the time to really understand our combined vision, lifestyle, and budget.
Oliver, Tawnya and Brad quickly earned our confidence as they clearly explained the process, provided us with a proposed budget, timeline and patiently answered our questions in quick and honest responses. We greatly appreciated it when they provided us with their opinions, options and recommendations. The whole team always acted professionally, transparent, caring and knowledgeable.
Tawnya knocked it out of the park with the design of our kitchen. Throughout the process, she worked collaboratively with us to ensure the finished product would be to our style, needs, personalities and taste. Working with a designer of this caliber is like hiring an artist.
Brad’s scheduling of trades/sub-trades ran like clockwork. There were several Rusch employees and other sub-contractors involved, and all were respectful, punctual and highly skilled. There were no surprises in the process. He and his team made the process seem easy, and when the inevitable hiccups occurred they were dealt with effectively. They presented us with solutions, not problems.
Throughout this renovation process we expressed to our family and friends how pleased and impressed we were with Rusch Design, and we will continue to highly recommend them to anyone who asks about our renovation.
We have the utmost respect and praise for Rusch Design, the work that they do, the way they conduct themselves and how they exceeded our expectations with the finished product as our home has been beautifully transformed.
Thank you so much!!!”
– Janis & Brent, Woodbine Homeowners
Renovation Goals
The primary goal was to create a bright, expansive kitchen that better supported entertaining while improving day-to-day functionality. The homeowners wanted a space that felt warm, modern, and highly usable without compromising storage or flow.
- Open up the main floor and improve sightlines
- Maximize natural light and window impact
- Increase prep space and storage capacity
- Create a social, entertainment-focused layout
- Deliver a refined, modern aesthetic with warmth
The core challenge was transforming a closed-off, dated kitchen into a seamless open-concept hub without sacrificing structure or functionality.
Vision
AWarm, Light-Filled Kitchen Designed for Connection
The vision centered on creating a kitchen that feels expansive, welcoming, and effortlessly functional—balancing modern design with natural warmth.
- Large central island as the focal gathering space
- Continuous material palette tying kitchen to surrounding rooms
- Feature ceiling beams to define space without closing it off
- Clean cabinetry lines paired with textured tile accents
- Integrated lighting to enhance both function and ambiance
The final result is a cohesive, inviting space where design and functionality work seamlessly together.
Design Phase
Creating Clarity Before Construction
The design focused on reworking the layout to maximize openness, improve workflow, and introduce intentional focal points throughout the space.
- Removal of structural walls to connect kitchen, dining, and living areas
- Reconfiguration to a large central island layout
- Centering the sink on the new enlarged window
- Addition of a secondary prep sink in the island
- Integration of a dedicated bar and beverage zone
- Full-height cabinetry wall for appliances and pantry storage
- Introduction of ceiling beams to define the kitchen zone
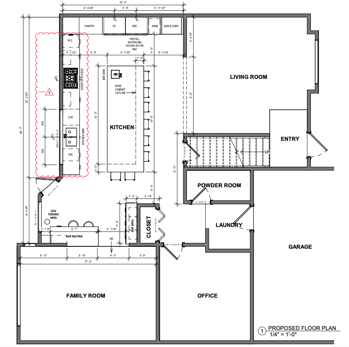
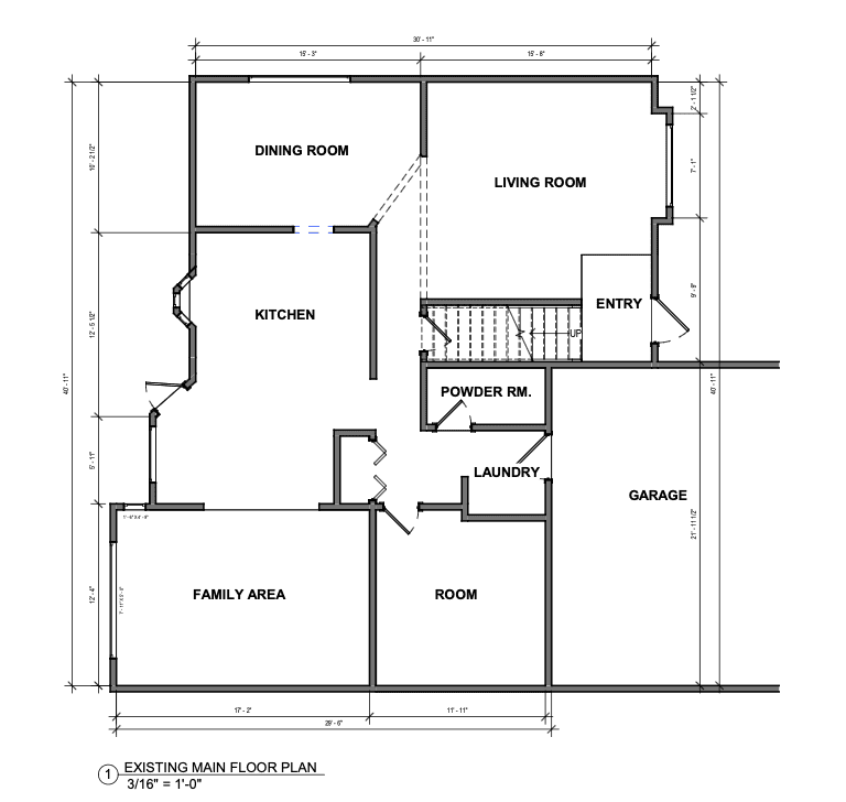
BEFORE & AFTER FLOOR PLANS
This redesign focused on opening the main floor and reorganizing the kitchen around a central island for improved flow and usability.
Old Floor Plan
The original layout featured a closed-off kitchen separated from the dining and living areas, limiting natural light and creating a disconnected feel. A bay window and segmented walls further restricted usable space and interrupted flow.
Storage was inefficient, prep areas were limited, and the layout did not support entertaining or multiple users working in the kitchen at once.
New Floor Plan
The new layout removes key walls and opens the kitchen into the surrounding living spaces, creating uninterrupted sightlines and a much larger functional footprint.
A large central island anchors the design, providing seating, prep space, and a secondary sink. Appliance zones, pantry storage, and a bar area are strategically positioned to improve workflow while supporting both everyday use and entertaining.
3D RENDERINGS
The 3D renderings played a critical role in helping the homeowners visualize the transformation before construction began. They allowed for confident decision-making around layout, finishes, lighting, and cabinetry details—especially important as many approvals were completed remotely.
These renderings ensured alignment on design intent and minimized uncertainty throughout the build process.
Construction Phase
Bringing the Design to Life
This Woodbine renovation required careful coordination of structural, mechanical, and finishing elements to achieve the open-concept vision.
- Structural wall removal and beam integration
- Removal of dated dropped “sunshine” ceiling
- Enlargement and reframing of window openings
- Relocation of plumbing for dual sink configuration
- Installation of new electrical plan with layered lighting strategy
- Custom cabinetry installation with mixed material finishes
- Integration of toe-kick and under-cabinet lighting throughout
The project was executed with precise planning and coordination, delivering a highly detailed and refined final result on schedule.







